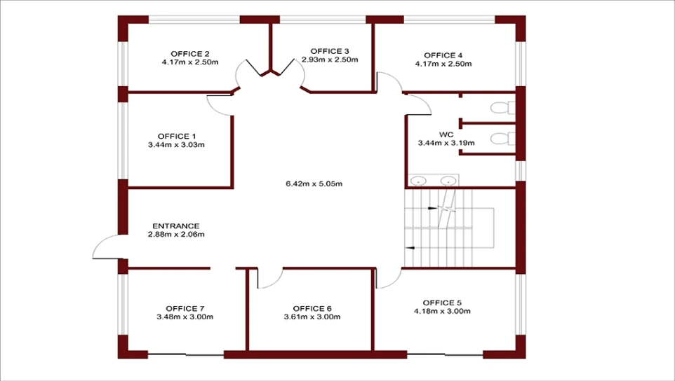
Commercial 2D Plans
The Blueprint of Success
Visual Element :
The Main Image: A dramatic, high-contrast image of a single, flawless blue line (representing your 2D plan) that seamlessly transitions into a photo of a magnificent, completed commercial building (a modern office tower, a sleek retail complex, etc.).
Color Palette: A professional, bold mix of deep indigo/blueprint blue (for the planning/line) and a metallic silver or gold (for the completed building/text) against a crisp white or dark gray background.
Headline & Slogan :
BEYOND THE BLUEPRINT.
Your vision, flawlessly planned.
Body Copy :
2D Commercial Planning built on precision, speed, and zero-error foresight. We transform initial concepts into actionable, build-ready plans that eliminate costly surprises and keep your project on schedule.
Get the solid foundation your investment deserves.
Call to Action :
Start with a Flawless Foundation. Get a Quote Today.
I.T. Hub
Travel Agency
Show Room
Call Center
Commercial Office Drawing